杭州余杭【西溪铭庭】(欢迎您)西溪铭庭售楼处丨杭州西溪铭庭-楼盘详情
扫描到手机,新闻随时看
扫一扫,用手机看文章
更加方便分享给朋友
西溪铭庭🌳 ◁ ◁
城西销量𝐓𝐎𝐏𝟏 钜惠工抵房❗
拼手速抢占城西真改善大五房
#难得西溪𝟯𝟬𝟬方•今年买今年住
实景准现房 即买即办产证
西溪铭庭区位图
5座商业体,北大资源博雅城、世茂中央广场、龙湖西溪天街、绿城世纪中心、西溪银泰城,


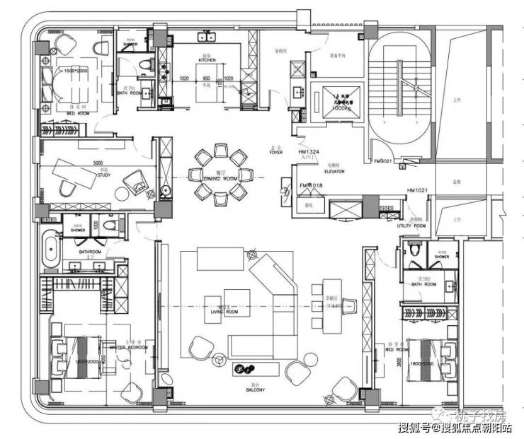
项目主力面积约300方大户型,做到了5房2厅4卫+1保姆房,84%得房率,成就市面上同面积段销售产品中功能性最强的户型。
项目户型特点:
全明通透,全落地窗加平开窗的设计,保证通风与采光,优于传统的商业大平层项目无法正常开窗的设计;
四开间朝南,南向面宽达18.3米,保证最佳的采光和视野;
客厅开间5.9米,造就约40平米大方厅一体化设计,宽敞大气;
1.6*9.45超大(内阳台),增强了实用性,主卧全套房设计,4.7米大开间;
两梯两户,消防门隔开,相当于一梯一户;
入户前约10平米电梯厅属于私享空间;
【项目信息】● 项目名称:西溪铭庭● 项目区域:蒋村板块● 产权:40年● 套数:8幢共94套● 梯户比:两梯两户● 大空间主力面积:约307方,层高:约3.5米,均价3.9万;写字楼单套300-330方,整栋约5600方,均价24500。交付时间:预计2023年年底。
声明:本文由入驻焦点开放平台的作者撰写,除焦点官方账号外,观点仅代表作者本人,不代表焦点立场。
